TỔNG QUAN XE NÂNG ĐIỆN 1.5 TẤN TOYOTA

Xe nâng điện 1.5 tấn Toyota | 3 Bánh - Ngồi Lái

THÔNG SỐ KỸ THUẬT XE NÂNG ĐIỆN 1.5 TẤN TOYOTA

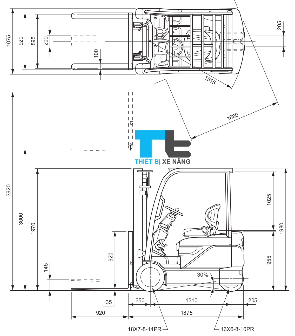
Hình vẽ tổng thể xe nâng điện 1.5 tấn Toyota | 3 bánh - Ngồi Lái

MODEL XE NÂNG ĐIỆN 1.5 TẤN TOYOTA

ĐƠN VỊ 8FBE15
Tải trọng tối đa kg 1500
Trọng tâm mm 500
Chiều rộng (A) mm 1075
Bán kính vòng cua (B) mm 1515
Chiều cao (C) mm 1980
Chiều dài đến càng nâng (D) mm 1875

THÔNG SỐ ẮC QUY VÀ MÔ TƠ XE NÂNG ĐIỆN 1.5 TẤN TOYOTA

   
Hiệu điện thế/Dung lượng tối thiểu V/Ah 48/390
Hiệu điện thế/Dung lượng tối đa V/Ah 48/565
Công suất mô tơ vận chuyển kW 2×4,9
Công suất mô tơ nâng kW 9,2
.
Trở lên trên